【项目名称】:荣盛华府
【项目面积】:215㎡
【设计风格】:新中式风格
【设计主创】:卢娜
╱案例初印象Impression╱
传统中式风格沉淀千年经过无数岁月沧桑与历史的洗礼仍然魅力不减,散发着东方格调新中式风格没有以往中式的浓墨重彩以素雅之姿演绎更具意境的新中式之态
╱设计诠释annotation╱
此案例为石家庄taptapvip入口装饰-荣盛华府215平米新中式风格taptap官方下载入口安卓。新中式风格传承了传统中式风格的文化底蕴,又将现代审美融入其中,将含蓄内敛的美学韵味徐徐呈现在了众人面前,令人沉醉、留恋。似有静谧、似含古韵,思想不禁浮想联翩,无法掩饰一个人的精神世界,是心灵和性情的外化之地。中式元素与现代材质搭配,既有文化的传承又不会全盘固守传统,是现代的思想与千年来的文化彼此融合与碰撞。
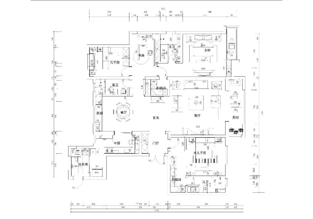
丨平面图—Plan丨

丨客厅—Living Room丨



丨餐厅—Dining Room丨

丨玄关和走廊—Vestibule & Corridor 丨





丨茶室—Tearoom丨
