石家庄
[切换]
集团
保定
唐山
鹦鹉螺
中国家装设计百强企业
咨询热线:400-999-8206
首页
taptap官方下载入口安卓
taptap点点网服务网址
案例图库
taptap点点手机网页版
taptap点点登录入口
金舍装饰##taptap点点星际争霸2
设计师
taptap点点登录APP
热装楼盘
taptap点点亚洲体育
taptap点点官网登录入口
户型分析
taptap点点
五星服务
轻奢服务
私人订制
软装服务
墅业精工
taptap点点官网
品牌力量
实景展示
明星人物
工程服务
软装配饰
装修问答
装修指南
家装攻略
装修选材
装修设计
家居装饰
taptapTCG彩票
品牌故事
taptapvip入口新闻
客户心声
加入taptapvip入口
快速报价
搜 索
当前位置:
首页
>
热装楼盘
>
户型分析
> 九里晴川250平米现代简约风格户型解析
九里晴川250平米现代简约风格户型解析
来源:
taptapvip入口装饰
浏览:
次
更新时间:
2023-04-14 15:58:51
项目地址:九里晴川
装修面积:250平米
装修风格:现代简约风格
设计师:赵磊
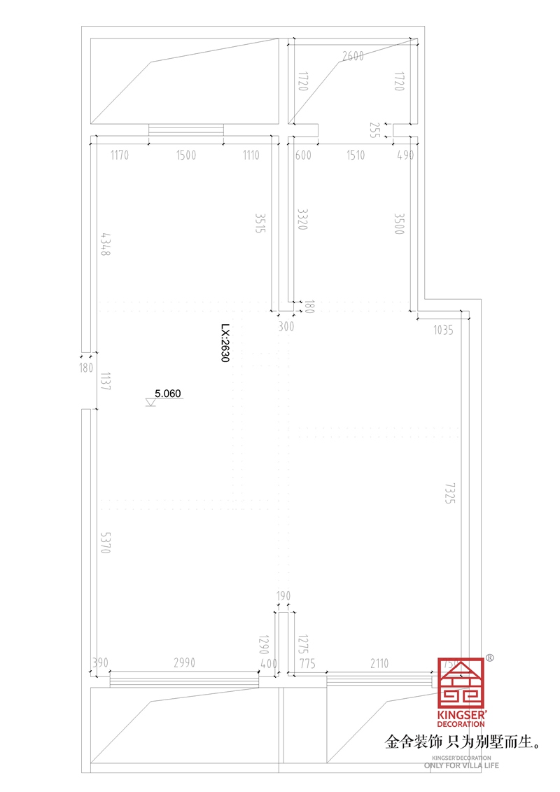
九里晴川现代简约风格户型原始平面图
九里晴川现代简约风格户型平面布置图
上一篇:荣盛和府250平米别墅户型解析
下一篇:汉王府160平米顶跃装修户型解析
服务设计师
擅长风格:
中式风格 现代简约
擅长户型:
跃层 三居
设计理念:
设计是一种感受、一种心态 、一种舒适惬意的生活方式 用有限空间 做无限设计
预约设计师
装修无忧 免费报价
立即获取报价
更多 >>
相关案例
九里晴川143㎡上叠现代风格装修设计
风格:
现代简约风格
户型:
跃层
面积:
143㎡
九里晴川洋房装修131平现代轻奢风格效果图
风格:
轻奢风格
户型:
平层
面积:
131㎡
九里晴川143㎡欧式风格上跃taptap官方下载入口安卓
风格:
欧式风格
户型:
跃层
面积:
143㎡
石家庄洋房装修九里晴川131㎡简约美式效果图
风格:
美式风格
户型:
跃层
面积:
131㎡
家装资讯
2025-08-20
●
别墅厨房装修:避开这些坑,做饭更轻松
2025-07-06
●
石家庄装修公司揭秘:法式风格吊顶的选择与装修要点
2025-06-27
●
石家庄别墅装修小课堂:欧式家具清洁保养全攻略
2025-06-17
●
石家庄室内装修:打造不压抑的高级意式风格
2025-06-13
●
石家庄夏季别墅装修,铺地板的关键注意事项
2025-06-12
●
家里装修有必要装新风系统吗?
快速报价
taptapvip入口装饰 只为别墅而生
获取报价
预约设计师
预约设计师