石家庄
[切换]
集团
保定
唐山
鹦鹉螺
中国家装设计百强企业
咨询热线:400-999-8206
首页
taptap官方下载入口安卓
taptap点点网服务网址
案例图库
taptap点点手机网页版
taptap点点登录入口
金舍装饰##taptap点点星际争霸2
设计师
taptap点点登录APP
热装楼盘
taptap点点亚洲体育
taptap点点官网登录入口
户型分析
taptap点点
五星服务
轻奢服务
私人订制
软装服务
墅业精工
taptap点点官网
品牌力量
实景展示
明星人物
工程服务
软装配饰
装修问答
装修指南
家装攻略
装修选材
装修设计
家居装饰
taptapTCG彩票
品牌故事
taptapvip入口新闻
客户心声
加入taptapvip入口
快速报价
搜 索
当前位置:
首页
>
热装楼盘
>
户型分析
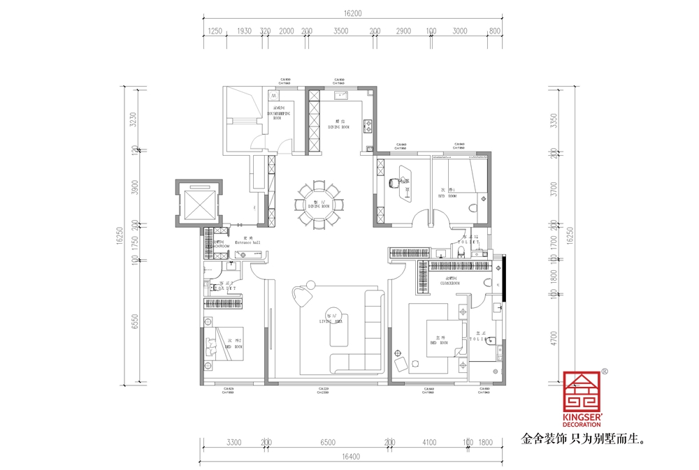
> 中海峯叁号院235平米装修户型解析
中海峯叁号院235平米装修户型解析
来源:
taptapvip入口装饰
浏览:
次
更新时间:
2025-01-13 16:06:30
小区:中海峯叁号院
装修风格:现代简约
装修面积:159平米
设计师:张立颖
户型优点:南北通透,大横厅客厅,
缺点:北侧卧室对卫生间干区镜子的问题,北卧室面积偏小
上一篇:国仕山150平中式风格装修设计户型分析
下一篇:最后一页
服务设计师
擅长风格:
美式风格 中式风格
擅长户型:
三居 四居
设计理念:
空间只是载体,人才是灵魂。
预约设计师
装修无忧 免费报价
立即获取报价
更多 >>
相关案例
中海峯叁号院235平米现代简约风格装修效果图
风格:
现代简约风格
户型:
平层
面积:
235㎡
中海峯200平米中式风格taptap官方下载入口安卓
风格:
中式风格
户型:
平层
面积:
200㎡
中海峯叁号院235平米复古美式风格taptap官方下载入口安卓
风格:
美式风格
户型:
平层
面积:
235㎡
家装资讯
2025-08-20
●
别墅厨房装修:避开这些坑,做饭更轻松
2025-07-06
●
石家庄装修公司揭秘:法式风格吊顶的选择与装修要点
2025-06-27
●
石家庄别墅装修小课堂:欧式家具清洁保养全攻略
2025-06-17
●
石家庄室内装修:打造不压抑的高级意式风格
2025-06-13
●
石家庄夏季别墅装修,铺地板的关键注意事项
2025-06-12
●
家里装修有必要装新风系统吗?
快速报价
taptapvip入口装饰 只为别墅而生
获取报价
预约设计师
预约设计师