石家庄
[切换]
集团
保定
唐山
鹦鹉螺
中国家装设计百强企业
咨询热线:400-999-8206
首页
taptap官方下载入口安卓
taptap点点网服务网址
案例图库
taptap点点手机网页版
taptap点点登录入口
金舍装饰##taptap点点星际争霸2
设计师
taptap点点登录APP
热装楼盘
taptap点点亚洲体育
taptap点点官网登录入口
户型分析
taptap点点
五星服务
轻奢服务
私人订制
软装服务
墅业精工
taptap点点官网
品牌力量
实景展示
明星人物
工程服务
软装配饰
装修问答
装修指南
家装攻略
装修选材
装修设计
家居装饰
taptapTCG彩票
品牌故事
taptapvip入口新闻
客户心声
加入taptapvip入口
快速报价
搜 索
当前位置:
首页
>
热装楼盘
>
户型分析
> 东南智汇城94平米装修户型分析
东南智汇城94平米装修户型分析
来源:
taptapvip入口装饰
浏览:
次
更新时间:
2019-10-11 09:23:24
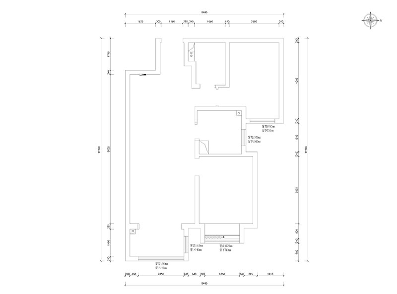
原始户型图
户型分析:
1 主卧室门在电视墙上,可做隐形门处理,使电视墙居中
2 次卧室放不下衣柜,可以在餐厅做定制柜子增多收纳
3 卫生间比较长可以改成干湿分离
4 厨房L型满足洗切炒还有单开门冰箱的位置
上一篇:龙湖天辰原著一字型合院别墅户型分析
下一篇:东南智汇城153平米装修户型分析
服务设计师
擅长风格:
中式风格 混搭风格
擅长户型:
跃层 四居
设计理念:
创新,用心,执行 ! 每个好的方案都是一个“故事”,都会是设计师的一些 情感表述,真情留露,用心做的设计,能感动自己的,肯定能感动客户,我们的任务就是做好每个“故事”的导演。
预约设计师
装修无忧 免费报价
立即获取报价
更多 >>
相关案例
东南智汇城别墅500平米现代风格装修效果图
风格:
现代简约风格
户型:
别墅
面积:
500㎡
东南智汇城191平米轻奢风格装修实景
风格:
轻奢风格
户型:
四居
面积:
191㎡
东南智汇城191㎡轻奢风格实景图
风格:
轻奢风格
户型:
四居
面积:
191㎡
东南智汇城126平米法式轻奢风格装修效果图
风格:
轻奢风格
户型:
三居
面积:
126㎡
家装资讯
2025-08-20
●
别墅厨房装修:避开这些坑,做饭更轻松
2025-07-06
●
石家庄装修公司揭秘:法式风格吊顶的选择与装修要点
2025-06-27
●
石家庄别墅装修小课堂:欧式家具清洁保养全攻略
2025-06-17
●
石家庄室内装修:打造不压抑的高级意式风格
2025-06-13
●
石家庄夏季别墅装修,铺地板的关键注意事项
2025-06-12
●
家里装修有必要装新风系统吗?
快速报价
taptapvip入口装饰 只为别墅而生
获取报价
预约设计师
预约设计师