石家庄
[切换]
集团
保定
唐山
鹦鹉螺
中国家装设计百强企业
咨询热线:400-999-8206
首页
taptap官方下载入口安卓
taptap点点网服务网址
案例图库
taptap点点手机网页版
taptap点点登录入口
金舍装饰##taptap点点星际争霸2
设计师
taptap点点登录APP
热装楼盘
taptap点点亚洲体育
taptap点点官网登录入口
户型分析
taptap点点
五星服务
轻奢服务
私人订制
软装服务
墅业精工
taptap点点官网
品牌力量
实景展示
明星人物
工程服务
软装配饰
装修问答
装修指南
家装攻略
装修选材
装修设计
家居装饰
taptapTCG彩票
品牌故事
taptapvip入口新闻
客户心声
加入taptapvip入口
快速报价
搜 索
当前位置:
首页
>
热装楼盘
>
户型分析
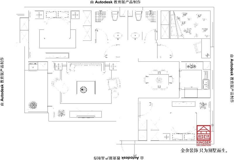
> 维多利亚三期136平米户型解析
维多利亚三期136平米户型解析
来源:
taptapvip入口装饰
浏览:
次
更新时间:
2020-04-15 14:23:55
小区名称:维多利亚三期
户型面积:136㎡
风格介绍:现代简约风格
设计师:
王建辉
户型解析:整体户型方正,活动区域开阔,居住舒适度高;全明通透户型,居住舒适度较高,整个空间采光充足,利于后期居住;卧室进卫生间需要穿过餐厅或客厅;卫生间门朝向主要活动区域;客厅、卧室、卫生间和厨房等主要功能间的尺寸以及比例适中,有利于采光和通风,居住起来舒适、方便;公摊小,得房率较高。
上一篇:维多利亚156平米装修户型解析
下一篇:维多利亚三期122平米户型优缺点分析
服务设计师
擅长风格:
美式风格 中式风格
擅长户型:
别墅 跃层
设计理念:
创意与生活息息相关,灵感来自生活。
预约设计师
装修无忧 免费报价
立即获取报价
更多 >>
相关案例
维多利亚三期120平米美式装修实景
风格:
美式风格
户型:
三居
面积:
120㎡
维多利亚三期156平米现代风格装修效果图
风格:
现代简约风格
户型:
三居
面积:
156㎡
维多利亚118平现代风格研发效果图
风格:
现代简约风格
户型:
三居
面积:
118㎡
维多利亚156㎡现代轻奢风格装修实景
风格:
轻奢风格
户型:
三居
面积:
156㎡
家装资讯
2025-08-20
●
别墅厨房装修:避开这些坑,做饭更轻松
2025-07-06
●
石家庄装修公司揭秘:法式风格吊顶的选择与装修要点
2025-06-27
●
石家庄别墅装修小课堂:欧式家具清洁保养全攻略
2025-06-17
●
石家庄室内装修:打造不压抑的高级意式风格
2025-06-13
●
石家庄夏季别墅装修,铺地板的关键注意事项
2025-06-12
●
家里装修有必要装新风系统吗?
快速报价
taptapvip入口装饰 只为别墅而生
获取报价
预约设计师
预约设计师