当前位置: 首页 > 热装楼盘 > 户型分析 > 西山林语二期168平米装修户型解析
西山林语二期168平米装修户型解析
来源:taptapvip入口装饰 浏览: 更新时间:2020-05-16 15:12:34
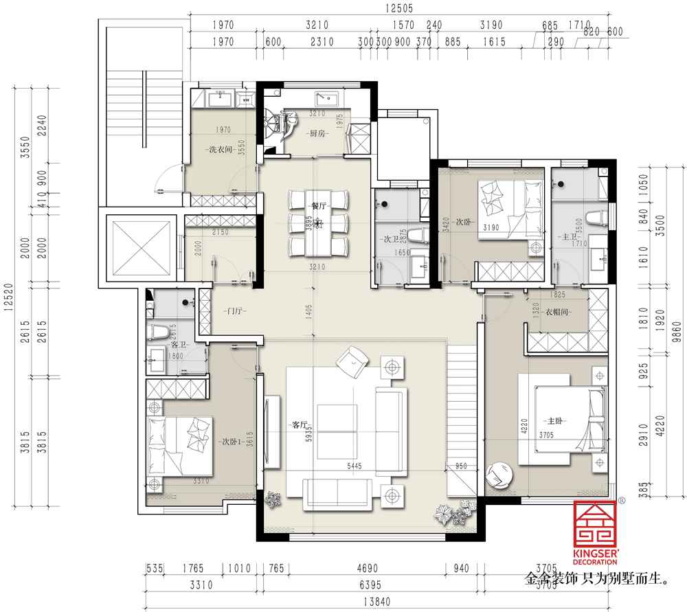
   项目地点:西山林语二期

  面积:168.5+58

  设计师:康立翅




  户型优缺点:

       
客厅区间宽敞,但房高不算高,使空间比较压抑,

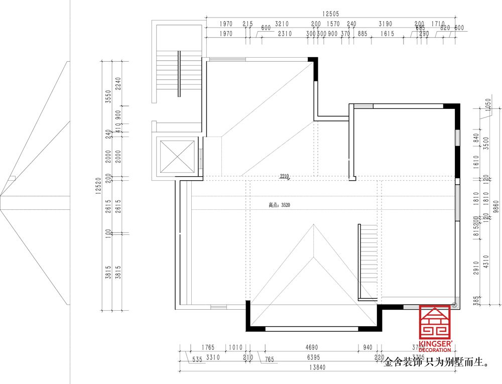
  厨房相对较小、顶部阁楼采光较弱、空间使用率较低,楼梯光线较暗,没有和楼下产生互动。

 

  拆改方法:把客厅上方楼板打掉,变成挑空的整体空间,楼梯没有墙的遮挡,使得空间的采光及互动感大大增加。

  主卧从狭长的空间内增加了一个独立衣帽间。

  阁楼东侧作为一个开敞的休闲娱乐空间,增加家庭互动。

  西侧作为卧室,也加强了私密性。

服务设计师

擅长风格:美式风格 轻奢风格

擅长户型:别墅 跃层

设计理念:设计因使用者而存在 以人为本 和谐自然

预约设计师

装修无忧 免费报价

更多 >>

相关案例

西山林语300平米欧式风格装修效果图

风格:欧式风格 户型:别墅 面积:300㎡

西山林语303平米中式风格装修效果图

风格:中式风格 户型:别墅 面积:303㎡

西山林语303平米美式风格装修效果图

风格:美式风格 户型:别墅 面积:303㎡

家装资讯

2025-08-20 别墅厨房装修:避开这些坑,做饭更轻松​
2025-07-06 石家庄装修公司揭秘:法式风格吊顶的选择与装修要点
2025-06-27 石家庄别墅装修小课堂:欧式家具清洁保养全攻略
2025-06-17 石家庄室内装修:打造不压抑的高级意式风格
2025-06-13 石家庄夏季别墅装修,铺地板的关键注意事项
2025-06-12 家里装修有必要装新风系统吗?
快速报价

taptapvip入口装饰 只为别墅而生

预约设计师