当前位置: 首页 > 热装楼盘 > 户型分析 > 德贤公馆130平户型解析
德贤公馆130平户型解析
来源:taptapvip入口装饰 浏览: 更新时间:2019-09-10 11:00:49
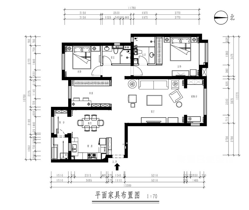
     根据业主要求,此户型需要解决的问题有两个: 

  1:次卧的面积小,衣柜储物问题无法解决。

       2 :书房的空间不开敞。

  石家庄taptapvip入口装饰设计师深入考察房子结构后,根据业主需求把书房和过道的墙打通,解决了空间狭小问题,坐在沙发上也能看到北面的风景,这样扩展了空间,同时让人置身在美好的风景中。同时利用书房的墙面做了整体柜子,解决了次卧没有储物空间的局面。

 


服务设计师

擅长风格:轻奢风格 混搭风格

擅长户型:别墅 跃层

设计理念:感知生活、掌控气息、逐本溯源、静修洗练。

预约设计师

装修无忧 免费报价

更多 >>

相关案例

德贤公馆160平米轻奢风格装修实景

风格:轻奢风格 户型:四居 面积:160㎡

中冶德贤公馆160平米欧式风格装修实景

风格:欧式风格 户型:三居 面积:160㎡

中冶德贤公馆150平极简风格装修效果图

风格:现代简约风格 户型:三居 面积:150㎡

中冶德贤公馆160平米简欧风格装修效果图

风格:欧式风格 户型:三居 面积:160㎡

家装资讯

2025-08-20 别墅厨房装修:避开这些坑,做饭更轻松​
2025-07-06 石家庄装修公司揭秘:法式风格吊顶的选择与装修要点
2025-06-27 石家庄别墅装修小课堂:欧式家具清洁保养全攻略
2025-06-17 石家庄室内装修:打造不压抑的高级意式风格
2025-06-13 石家庄夏季别墅装修,铺地板的关键注意事项
2025-06-12 家里装修有必要装新风系统吗?
快速报价

taptapvip入口装饰 只为别墅而生

预约设计师