面积:200平米
设计师:武林慧


优点:
1.户型方正、动线分明、南北通透、
三面采光。
2.玄关,客厅,餐厅,厨房相
连动线明确
缺点:
1.厨房面积过于狭小
改造:
1.将厨房墙垛拆掉,做成开放式厨房,引入更多光线的同时,扩大了厨房的面积,增加了吧台功能需求。
2.通过改变厨房墙体结构,既增大了厨房的储物空间,又为入户玄关增加了鞋帽柜方便回家衣物的放置。


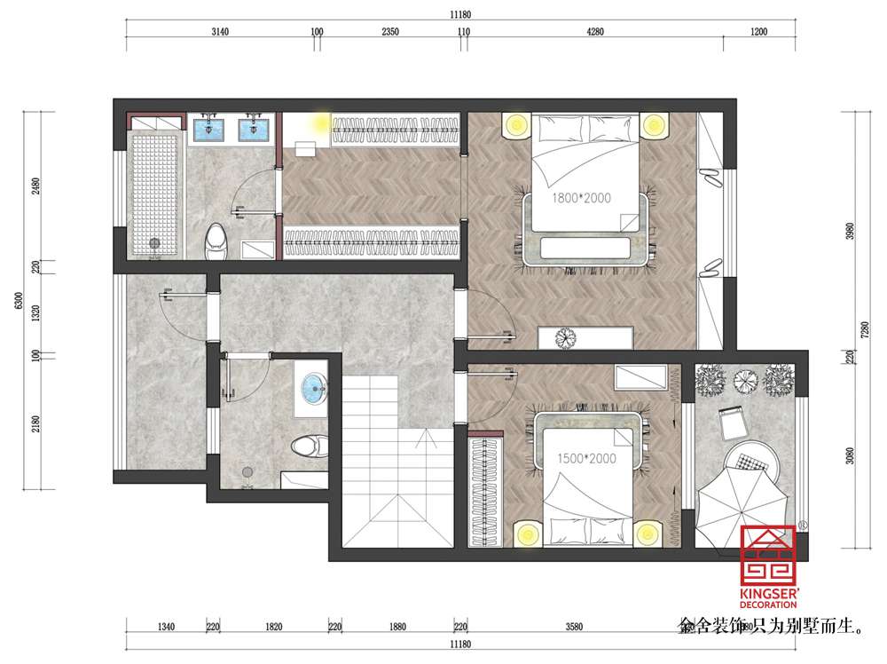
上叠户型 200㎡二层户型
优点:
1.南北通透,采光,通风良好
2.主卧连接衣帽间,卫生间动线分明次卧附带生活阳台,增加生活情趣
缺点:
1.主卫面积偏大浪费空间,反而衣帽间面积过小,空间划分不够合理
改造:
1.合理划分主卫和衣帽间面积,缩小主卫面积,扩大衣帽间面积,使其功能需求更加合理


上叠户型 200㎡三层户型
优点:
1.户型方正,可利用性高
改造:
1.把可拆除墙体全部拆除,使其空间更加通透,采光更好