石家庄
[切换]
集团
保定
唐山
鹦鹉螺
中国家装设计百强企业
咨询热线:400-999-8206
首页
taptap官方下载入口安卓
taptap点点网服务网址
案例图库
taptap点点手机网页版
taptap点点登录入口
金舍装饰##taptap点点星际争霸2
设计师
taptap点点登录APP
热装楼盘
taptap点点亚洲体育
taptap点点官网登录入口
户型分析
taptap点点
五星服务
轻奢服务
私人订制
软装服务
墅业精工
taptap点点官网
品牌力量
实景展示
明星人物
工程服务
软装配饰
装修问答
装修指南
家装攻略
装修选材
装修设计
家居装饰
taptapTCG彩票
品牌故事
taptapvip入口新闻
客户心声
加入taptapvip入口
快速报价
搜 索
当前位置:
首页
>
热装楼盘
>
户型分析
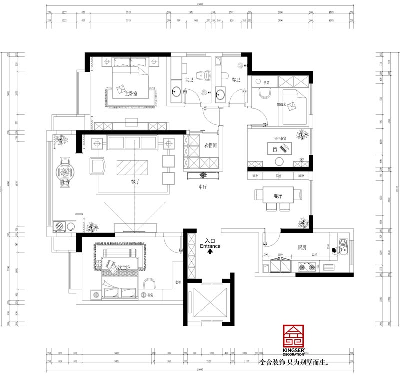
> 天山熙胡141平米装修新中式风格户型解析
天山熙胡141平米装修新中式风格户型解析
来源:
taptapvip入口装饰
浏览:
次
更新时间:
2021-07-24 14:03:54
【项目名称】:天山熙胡
【项目面积】:141平米
【设计风格】:新中式风格
【设计主创】:彭勇强
户型解析:
原户型没有男主人可以办公接待客人的一个私密的区域,于是在原户型的基础上加了一堵墙,隔出来两个空间,一个是客房,一个是茶室书房,使得空间的布局更加合理,各个空间的分工更加明确。
原户型次卧室是有一堵墙,可以做一个卫生间,经过沟通之后更想扩大卧室空间,于是拆墙之后,考虑到儿童学习的需要,多加了衣柜和学习桌,更加方便儿童学习。
上一篇:融创中心180平米新东方风格装修户型分析
下一篇:远洋晟庭装修设计130平米户型解析
服务设计师
擅长风格:
中式风格 轻奢风格
擅长户型:
跃层 四居
设计理念:
预约设计师
装修无忧 免费报价
立即获取报价
更多 >>
相关案例
家装资讯
2025-08-20
●
别墅厨房装修:避开这些坑,做饭更轻松
2025-07-06
●
石家庄装修公司揭秘:法式风格吊顶的选择与装修要点
2025-06-27
●
石家庄别墅装修小课堂:欧式家具清洁保养全攻略
2025-06-17
●
石家庄室内装修:打造不压抑的高级意式风格
2025-06-13
●
石家庄夏季别墅装修,铺地板的关键注意事项
2025-06-12
●
家里装修有必要装新风系统吗?
快速报价
taptapvip入口装饰 只为别墅而生
获取报价
预约设计师
预约设计师