当前位置: 首页 > 热装楼盘 > 户型分析
排序:
更新时间 浏览人气
搜索:

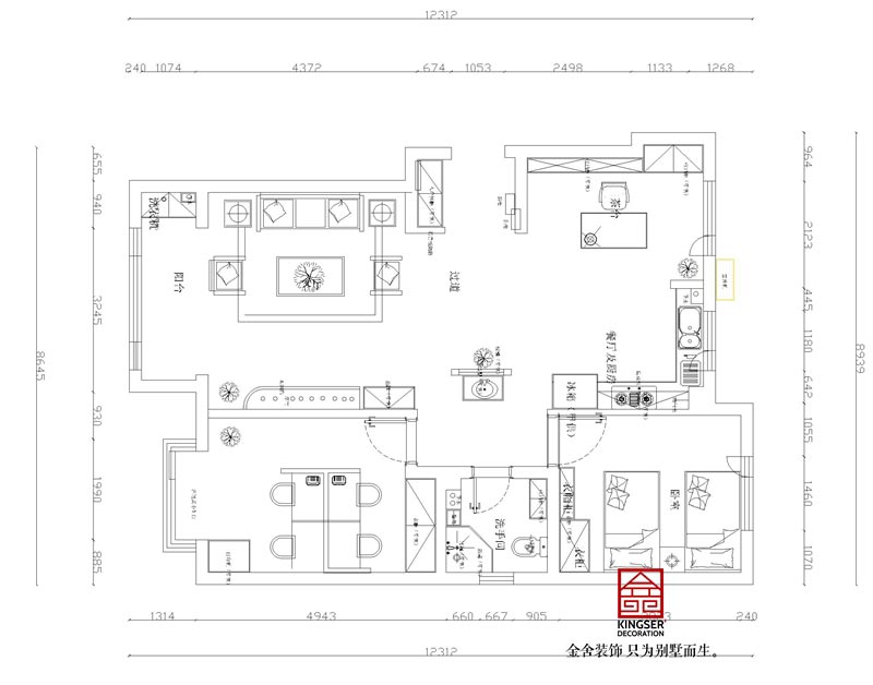
融创中心180平米户型解析

楼盘名称:融创中心

所属区域:裕华区

装修风格:美式风格

融创中心平户型解析 >>

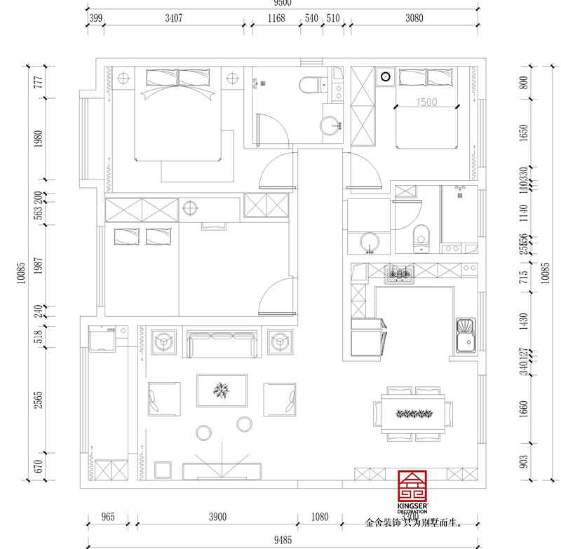
融创中心125平米新中式风格装修户型解析

楼盘名称:融创中心

所属区域:裕华区

装修风格:中式风格

融创中心平户型解析 >>

荣盛华府190平米简约轻奢风格户型分析

楼盘名称:荣盛华府

所属区域:裕华区

装修风格:轻奢风格

荣盛华府平户型解析 >>

丽景蓝湾114㎡三室两厅一卫户型解析

楼盘名称:丽景蓝湾

所属区域:

装修风格:现代简约风格

丽景蓝湾平户型解析 >>

丽景蓝湾114平米户型分析

楼盘名称:丽景蓝湾

所属区域:

装修风格:中式风格

丽景蓝湾平户型解析 >>

荣盛华府178平米轻奢极简风格装修户型解析

楼盘名称:荣盛华府

所属区域:裕华区

装修风格:轻奢风格

荣盛华府平户型解析 >>

天山国宾壹号116平米装修户型解析

楼盘名称:天山国宾壹号

所属区域:裕华区

装修风格:美式风格

天山国宾壹号平户型解析 >>

荣盛华府205平米现代简约装修户型解析

楼盘名称:荣盛华府

所属区域:长安区

装修风格:现代简约风格

荣盛华府平户型解析 >>

荣盛华府185平米中式风格装修户型解析

楼盘名称:荣盛华府

所属区域:桥西区

装修风格:中式风格

荣盛华府平户型解析 >>

荣盛华府178平米装修户型拆改分析

楼盘名称:荣盛华府

所属区域:长安区

装修风格:美式风格

荣盛华府平户型解析 >>

健康城160平米装修户型解析

楼盘名称:健康城

所属区域:鹿泉区

装修风格:美式风格

健康城平户型解析 >>

保利西山林语345平米装修户型解析

楼盘名称:西山林语

所属区域:鹿泉区

装修风格:新古典风格

西山林语平户型解析 >>

装修无忧 免费报价

更多 >>

推荐案例

中海峯叁号院235平米装修户型解析

风格:现代简约风格 户型: 面积:235㎡

国仕山150平中式风格装修设计户型分析

风格:中式风格 户型: 面积:150㎡

星河盛世235平轻奢风格装修户型解析

风格:轻奢风格 户型: 面积:235㎡

汉王府200平米跃层装修户型解析

风格:现代简约风格 户型: 面积:200㎡

快速报价

taptapvip入口装饰 只为别墅而生

预约设计师